石鋼0號高爐長壽實踐
對石鋼0號高爐的長壽實踐進行總結,設計中采取了整體式陶瓷杯爐缸內襯、優質炭磚;在建設中,重視內襯的砌筑質量;冶煉生產中,采用了有利于長壽的送風制度、熱制度、造渣制度以及爐渣排堿等長壽型操作。...
含有隔熱夾層的新型爐缸內襯與應用
本文介紹了在高爐爐缸環形炭磚與陶瓷襯體之間設置隔熱夾層的新型爐缸內襯。隔熱夾層降低了環形炭磚的工作溫度,提高了陶瓷襯體的冷端溫度,同時減小了二者所承受的熱應力,消除了堿金屬對碳質材料的嚴重威脅,因此能夠獲得較傳統形式的爐缸內襯更長的使用壽命。...
高爐鐵口區域安全與壽命的主要對策
鐵口異常影響高爐的爐役壽命,甚至導致安全事故。在鐵口區具有合理的工藝結構、優質耐材等基礎上,漏鐵和斷鐵口、異常噴濺、鐵口過淺等鐵口異常現象可通過采用操作性能和使用性能良好的優質炮泥、改進爐前操作、特種炮泥治理等技術和操作對策予以克服。...
高爐陶瓷杯用燒成磚與理化再結合磚的試驗研究
以燒成磚S、理化再結合磚F,理化再結合磚B,將B經1550℃燒成后的試樣BS為試驗對象,檢測了化學組成,常溫、中溫、高溫及使用性能等。通過對檢測結果的比較、分析,認為:理化再結合磚與燒成磚雖有某些性能上的些許差別,但無影響使用效果之本質差異;...
整體式陶瓷杯爐缸內襯的設計實踐和應用效果
針對爐缸內襯破損的主要因素,將煉鐵工藝設計和高爐長壽實踐成果融入爐缸內襯設計,對爐缸內襯進行包含煉鐵工藝設計、內襯性能設計、砌體結構設計等方面的體系設計為長壽型現代大型高爐奠定壽命技術基礎至關重要。...
陶瓷杯爐缸內襯在沙鋼5800m3高爐的應用效果
沙鋼5800m3高爐采用了整體式陶瓷杯、優質炭磚內襯等長壽結構爐襯,投產1年多的實踐表明,整體式陶瓷杯有效地發揮了“隔離”作用,爐底爐缸的炭磚得到了充分的保護,陶瓷墊下沿的溫度一直穩定在約500℃,而陶瓷杯側壁冷面溫度則保持在約300℃以內。...
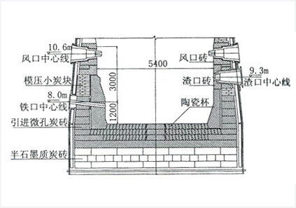
石鋼0號高爐長壽爐缸的設計和使用效果
石鋼新建0號高爐(420m3)采用了陶瓷杯爐缸內襯,具體結構是:爐底鋪滿3層國產半石墨質炭磚,第四層鋪滿炭磚為進口微孔炭磚,爐缸鐵口區域和鐵口以下區域采用進口微孔炭磚;爐底炭磚上面是同心圓斜面壓迫式砌筑的莫來石質陶瓷杯墊,陶瓷杯壁采用大塊灰剛玉制品;渣口、風口區域砌筑大塊灰剛玉組合磚。高爐投產后生產順利,鐵水溫度比其他內襯結構有明顯的提高。...
關于高爐爐前操作和炮泥使用的幾點認識
針對目前我國高爐平均出鐵次數偏高、噸鐵消耗炮泥量偏大的現狀,認為可以從改進爐前出鐵操作、合理選擇與使用炮泥兩個方面來改變這種狀況,并提出了相應的建議。...
高爐爐缸“陶瓷襯”結構要素的研究
采用特異型耐火制品、緩沖密閉材料構成的爐缸“整體陶瓷杯”,具有鑲嵌咬合的砌體結構,能有效釋放熱應力,給炭磚提供有效的保護,延長高爐壽命。時間表明,效果明顯。...









